TOWNHOUSE FLANDES 1
Ubicación: Las Condes, R.M. Chile
Arquitectos: Nicolás Irarrázabal Délano.
Arquitectos Asociados: Francisco Godoy.
Año de término: 2022
Superficie: 620 m2.
Constructor: Casas Délano.
Fotos: Cristóbal Correa, Bakerlab.
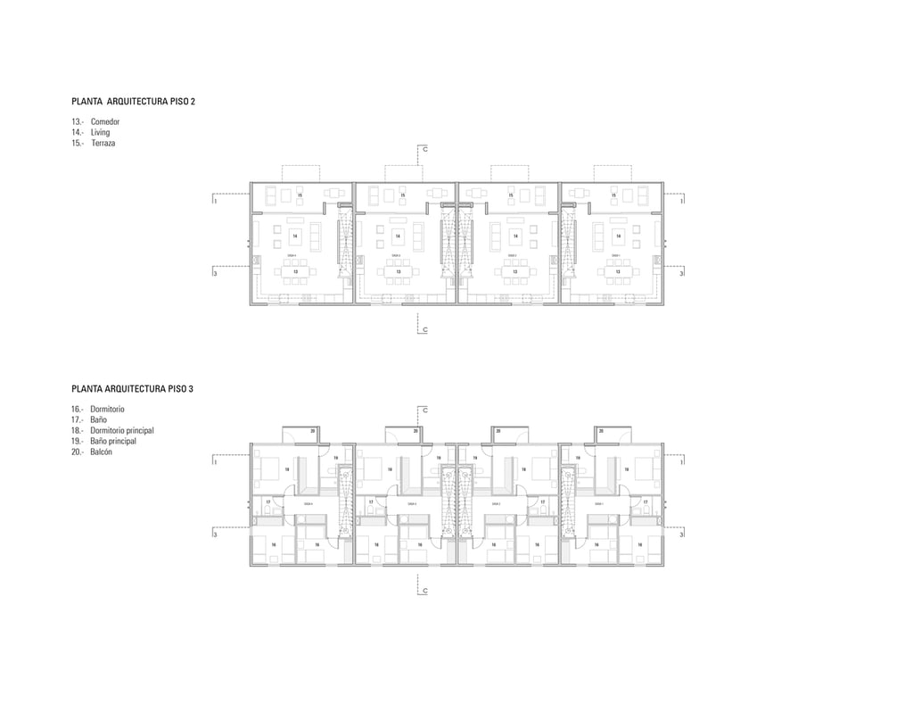
El condominio se configura a través de un amplio acceso que recibe las actividades comunes y estacionamientos, en paralelo se emplaza la construcción de un mono volumen de tres pisos que alberga cuatro viviendas con acceso independiente y sus respectivos jardines privados; con dos diferentes tipologías se configura un conjunto de baja altura y densidad media respetando el entorno y características del barrio residencial.
































NICOLÁS IRARRÁZABAL DÉLANO
ARQUITECTO PAISAJISTA
+56 9 92708883
nid@nicolasirarrazabal.cl
Camino de las Flores 1271 / Pirque
© 2025 Creado por NID
