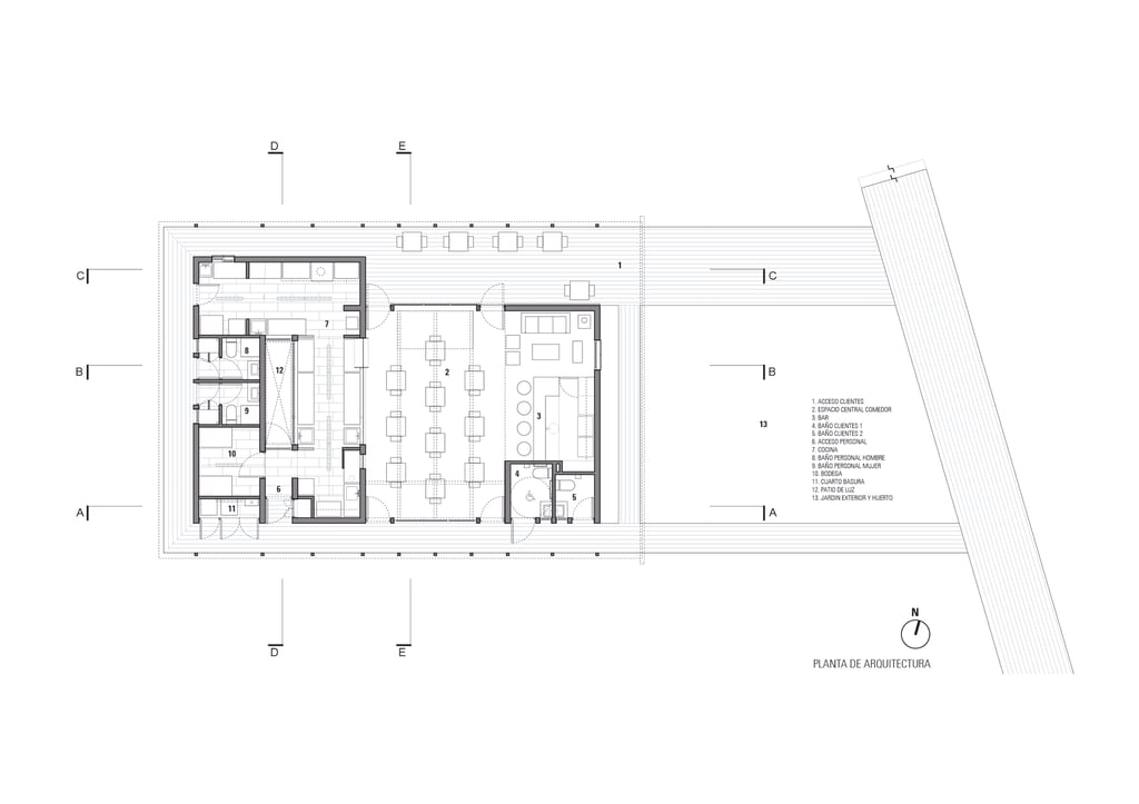
RESTORÁ EL SITIO
Ubicación: Ensenada, X Región, Chile
Arquitectos: Nicolás Irarrázabal Délano.
Arquitectos Asociados: Cristóbal Lamarca, Francisco Godoy.
Año de término: 2018
Superficie: 189 m2.
Constructor: DVE Constructora.
Fotos: Esteban Arteaga.
Ubicado en la ciudad de La Ensenada, el proyecto plantea una forma de habitar el terreno. Considerando 4 áreas paisajísticas distintas (El bosque / el Rio / la playa y el lago), se diseña una plataforma capaz de recorrer el terreno en toda su extensión dando a conocer sus cualidades. La edificación del taller gastronómico responde a la generación de una experiencia gastronómica en un interior / exterior de un bosque, con altos niveles de confort térmico y visual.




















NICOLÁS IRARRÁZABAL DÉLANO
ARQUITECTO PAISAJISTA
+56 9 92708883
nid@nicolasirarrazabal.cl
Camino de las Flores 1271 / Pirque
© 2025 Creado por NID
