HOGAR JUAN XXII / COANIL
Ubicación: Buín, R.M. Chile.
Arquitectos: Nicolás Irarrázabal Délano.
Arquitectos Asociados: Cristóbal Lamarca, Francisco Godoy, Nicolás Fourcade, Guillermo Andrews.
Año de término: 2011
Superficie: 1100 m2.
Constructor: Guillermo Olivares
Fotos: Guillermo Andrews
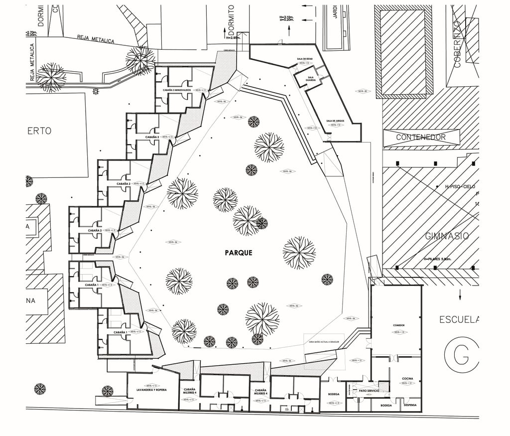
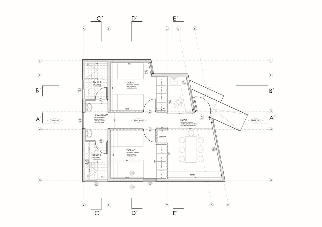
Hogar Juan XXIII - Desarrollo de master plan, Diseño de 12 cabañas y remodelación de comedores Hogar Juan XXIII, Coanil. El proyecto, a través del emplazamiento de los volúmenes, constituye un gran parque central reconociendo los arboles existentes. Los interiores son iluminados y ventilados a través de lucarnas y ventanas abiertas hacia el parque.
NICOLÁS IRARRÁZABAL DÉLANO
ARQUITECTO PAISAJISTA
+56 9 92708883
nid@nicolasirarrazabal.cl
Camino de las Flores 1271 / Pirque
© 2025 Creado por NID












