ESTACIÓN ROCK
Ubicación: Puero Varas, X Región, Chile
Arquitectos: Nicolás Irarrázabal Délano.
Arquitectos Asociados: Francisco Godoy.
Año de término: 2019
Superficie: 321 m2.
Constructor: Constructora G7.
Fotos: Esteban Arteaga.
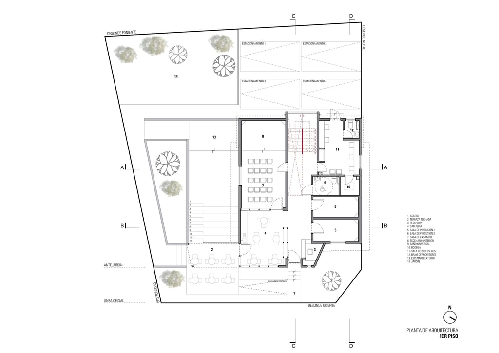
El proyecto considera la rehabilitación de una casona construida en 1968 en el barrio Estación de Puerto Varas. Considerando el nuevo programa propuesto para la edificación, una escuela de música rock, el primer objetivo del proyecto busca diseñar un sistema de circulación que estructure el proyecto en su totalidad, dando lugar al segundo objetivo el cual responde a conservar la identidad de la vivienda original, rescatando su valor patrimonial y lenguaje propio de la arquitectura del sur de Chile.
































NICOLÁS IRARRÁZABAL DÉLANO
ARQUITECTO PAISAJISTA
+56 9 92708883
nid@nicolasirarrazabal.cl
Camino de las Flores 1271 / Pirque
© 2025 Creado por NID
