COLEGIO ST ANDREW
Ubicación: Las Condes, R.M. Chile
Arquitectos: Nicolás Irarrázabal Délano.
Arquitectos Asociados: Cristóbal Lamarca, Francisco Godoy.
Año de término: 2013 / 2014
Superficie: 1020 m2.
Constructor: Guillermo Olivares..
Fotos: Nicolás Irarrázabal.
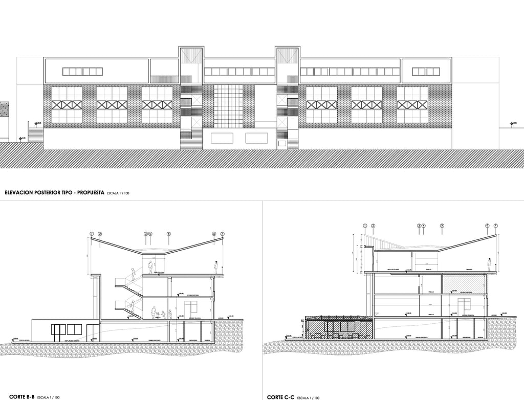
En respuesta al crecimiento del Colegio, se nos encargó la ampliación del 3er piso del edificio. La propuesta desarrolló una arquitectura contemporánea, capaz de conectarse con el edificio original, dándole una nueva estética. La principal estrategia estuvo en los conectores verticales y cajas de escaleras, permitiendo al edificio una doble orientación con vistas a la cordillera, el valle de Santiago y espacios de permanencia para los alumnos en el 3er piso. Además se incluyó el desarrollo de una sala de artes plásticas para alumnos de básica y media. El diseño responde a un espacio multipropósito, con iluminación natural indirecta y ventilación continua a través de una lucarna.










NICOLÁS IRARRÁZABAL DÉLANO
ARQUITECTO PAISAJISTA
+56 9 92708883
nid@nicolasirarrazabal.cl
Camino de las Flores 1271 / Pirque
© 2025 Creado por NID
